Kolme kutsuvaasyytä valita Polaris
Käytännölliset Flexxx-tilat vuokralaisen käytettävissä ilman lisäkustannuksia. Laajenna omaa toimitilaasi joustavasti tarpeen mukaan kolmen inspiroivan joustotilan avulla.
Tilanteet ja tarpeet toimitilojen suhteen voivat muuttua nopeastikin, jonka takia on tärkeää, että tilat ovat muuntojoustavat ja helposti muokattavissa. Polariksesta saat yksilöidysti tarpeisiinne suunnitellut, liiketoimintaa tukevat ja kestävät toimitilat.
Tutustu tarkemmin Polariksen toimitiloihin alla.
Polariksen laaja ja laadukas palvelutarjonta tukee vuokralaisten päivittäisiä toimia ja helpottaa arkea. Lämminhenkinen aulapalvelu ottaa vastaan vieraat, catering hoitaa kokouksiin maukkaat tarjoilut ja monipuolisista neuvotteluja kokoustiloista löydät varmasti tilaisuuteesi sopivan. Polariksen palvelut auttavat sinua ja vieraitasi viihtymään, ja voit itse keskittyä olennaiseen.
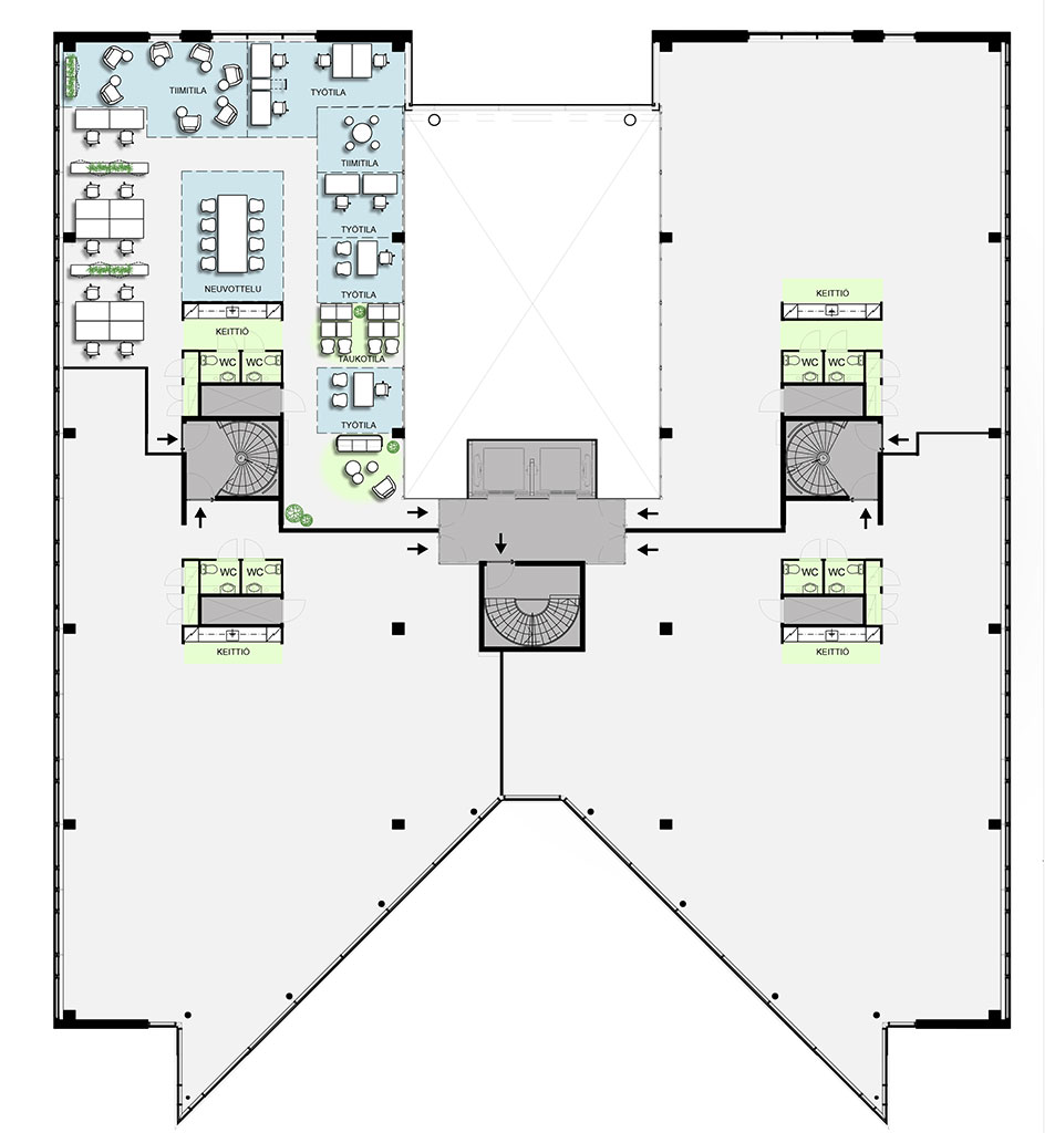
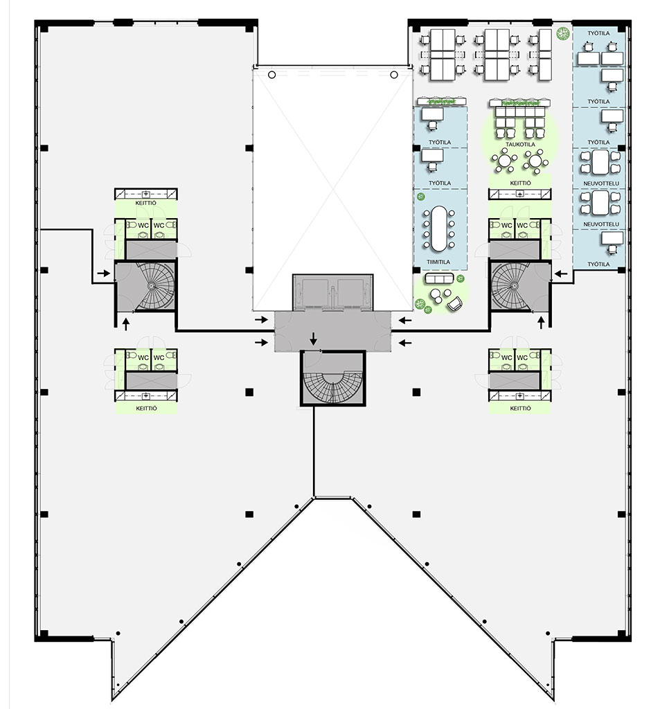
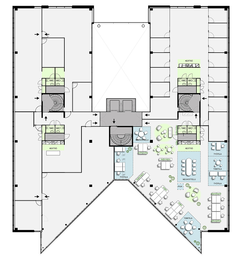
Avarat tilatyrityksenne tarpeisiin
Polariksessa on tarjolla helposti muunneltavia ja viihtyisiä tiloja kolmessa modernissa kiinteistössä – vaihtoehtoja löytyy noin 100 m² toimistoista aina noin 1 200 m² koko kerroksen kokonaisuuksiin. Vuokralaisyritysten käytössä ovat lisäksi kiinteistön Flexxx- joustotilat ilman lisäkustannuksia, jotka täydentävät tilankäyttöä tarpeen mukaan. Toimivia tiloja tarjoaa myös pientoimistoalue, jossa yritykset jakavat laadukkaat keittiö- ja sosiaalitilat tehokkaan tilankäytön tueksi.
Polaris tarjoaa joustavuutta niin avotilaa, huonetoimistoa kuin modernia monitilatoimistoa etsiville. Laaja asiantuntijaverkostomme mahdollistaa tilojen suunnittelun yhdessä, juuri sinun yrityksesi tarpeisiin – tehokkaasti, tyylikkäästi ja kestävästi. Tutustu heti vapaana tai vapautumassa oleviin toimistotiloihin ja esimerkkitilasovituksiin valitsemalla tarpeita vastaava neliömäärä alta löytyvistä valikoista.

Alle 200m² vapaat tilat
200-400m² vapaat tilat
600-1200m² vapaat tilat
Valmiina tutustumaan uusiin toimitiloihisi?
Energiatehokasta ja vastuullista toimitilaa
Polariksessa on turvallista visioida tulevaa. Perustamme Polariksessa toimintamme aina vastuullisille valinnoille, ja energiatehokas kolmikko tarjoaa mitä kirkkaimman paikan liiketoiminnan kasvulle.
BREEAM VERY GOOD -YMPÄRISTÖSERTIFIKAATTI
NYKYAIKAINEN RAKENNUSTEKNIIKKA
ENERGIATEHOKAS YLEISVALAISTUS
VIHREÄ SÄHKÖ
JÄÄHDYTETYT TOIMISTOTILAT
MIELLYTTÄVÄ TYÖILMASTO
Monien mahdollisuuksien Polaris
Polaris huolehtii kaikki kiinteistöön ja tiloihin liittyvät asiat, jolloin toimitilamuutos tapahtuu suoraviivaisesti ja vaivattomasti. Laaja ammattilaisverkosto mahdollistaa yksilöidysti suunnitellut, vuokralaisen liiketoimintaa tukevat ja kestävät toimitilat. Muuton jälkeen Polariksen vetovoimainen palvelukattaus takaa, että työnteko soljuu ilmavasti tiloissa työskentelevän hyvinvointia unohtamatta.
1.
Uusien tilojen
suunnittelu yhdessä
2.
Muutto ja muutokset
yhteistyössä
3.
Palveleva
managerointi arjessa
Polarisvuokralaisten silmin
Polaris tarjoaa joustavaa ja yhteisöllistä toimistotilaa monipuolisesti eri alojen yrityksille. Jo useat nimekkäät yritykset ovat löytäneet tiensä Polariksen vetovoimaisiin tiloihin.


















